Property was removed from publication

4-bedroom Villa For sale in Calpe 427 m2 - VL191114B8BBB

Add to Favourites list
Add to Favourites list

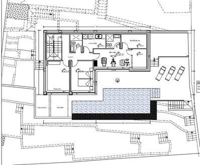
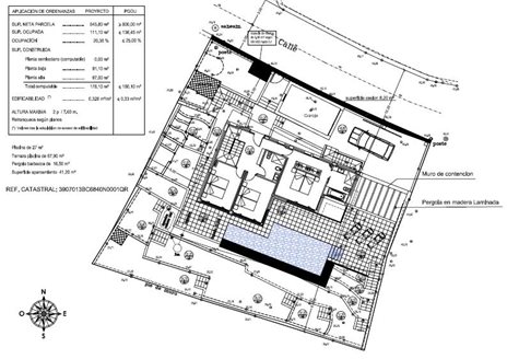
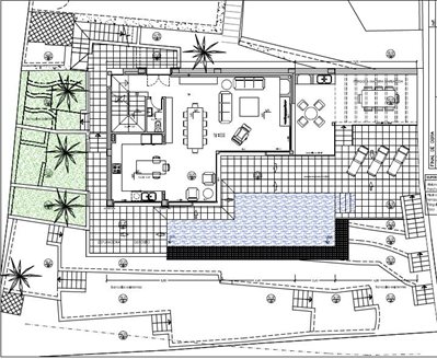
This luxury villa has a spacious living/dining room, kitchen with island, 4 bedrooms, 4 bathrooms, 1 guest toilet, an office, a gym, sauna, bbq area and a swimming pool. The possibility exists of altering the distribution and changing the office and gym for two additional bedrooms. Heating with heat pump, paving and tiling Saloni porcelain stoneware, ivory cream matt marble staircase, Hansgrhoe taps, Laufen and Jacob Delafon sanitary appliances, high quality painting, lacquered kitchen with Dica-Fusta wood.

Direct offer from the developer. You can reserve property online without flying to Spain, as well as pay in instalments until the property is constructed. It is also possible to obtain a mortgage. You can ask our managers for plans, availability and full price list.

Bathrooms 5
Bedrooms 4
Built area 427
Rooms 5
Sea view Yes
Condition Newly built
Flooring Granite, Marble
Furniture Fully furnished
Year of construction 2018
Distance to sea 80
Plot area 557
Parking type Garage
Pools 1
Pool Private
Type of terrace Open
Interested in buying property in Spain?Send your request and get our immediate feedback!
By sumbitting this form, you confirm that you agree to our website terms of use, our privacy policy and understand how we store cookies on your device.
Up