Property was removed from publication
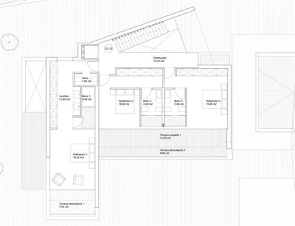
4-bedroom Villa For sale in Moraira 426 m2 - VL19528C2027
Interested in buying property in Spain?Send your request and get our immediate feedback!
By sumbitting this form, you confirm that you agree to our website terms of use, our privacy policy and understand how we store cookies on your device.

Subscribe to our newsletter
By sumbitting this form, you confirm that you agree to our website terms of use, our privacy policy and understand how we store cookies on your device.