Property was removed from publication

4-bedroom House For sale in Moraira 426 m2 - VL1975B4CCA

Add to Favourites list
Add to Favourites list

A luxurious 4 bedroom villa, on built in Moraira, with private pool and fantastic sea views, just 2,5 km distance to the beach.

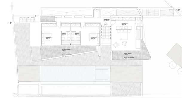
This 426 sqm villa, is being built on 2 levels, connected by an internal staircase, on a 860 sqm plot, South- Facing, just 2,5 km distance to the beach and 2,5 km distance to Moraira, with all amenities.

The property is equipped with heating floors, air conditioned, intelligent surveillance system, security door, lift and security glass in all windows.

This luxurious villa comprises a living- dining room, an open plan kitchen 4 bedrooms, all of them with an en suite bathroom, 2 guest toilets, a cinema room, 2 open terraces, 2 covered terraces and a store room. The plot is comprised of a private infinity pool, a chill out area with barbecue, a fantastic garden and a double garage.[IW]

Bathrooms 6
Bedrooms 4
Elevator True
Orientation South
Built area 426
Rooms 5
View from the window Sea
Condition Resale
Energy Performance Index TA
Features Double glazed windows
Year of construction 2018
Plot area 860
Parking type Garage
Pools 1
Pool Private
Type of terrace Open
Interested in buying property in Spain?Send your request and get our immediate feedback!
By sumbitting this form, you confirm that you agree to our website terms of use, our privacy policy and understand how we store cookies on your device.
Up