4-bedroom Mansion For sale in Calpe 342 m2 - VL2512252EEA

Add to Favourites list
Add to Favourites list

Modern villa with panoramic sea views in La Fustera, Benissa Costa.

This exclusive newly built villa, designed by a renowned architect and constructed by a local developer with over 20 years of experience, is situated on an 800 m² plot just a few steps from La Fustera beach.

Combining Mediterranean warmth with contemporary elegance, the villa's architecture incorporates natural stone, wood, and soft neutral tones, harmoniously blending into the coastal landscape.

The total built area of the villa is 716 m², distributed over three levels — basement, first floor and second floor — offering an ideal balance of functionality, design and comfort.

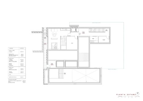
Basement.

The lower level of 105.97 m² is designed with both practicality and leisure in mind.

It includes a fully equipped gym, laundry room and technical facilities, with the possibility to adapt additional spaces into a wine cellar, cinema room or multipurpose hall.

This level also houses the pool filtration system and water tanks, ensuring efficient management of all technical installations.

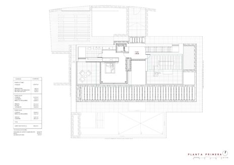
First floor.

The main level of 137.93 m² features a bright open-plan layout that reflects the essence of Mediterranean living.

The spacious living room, dining area and kitchen open through large floor-to-ceiling windows onto the main terrace and infinity pool, framing the incredible panoramic sea views that define the character of this home.

Two double bedrooms, a fully equipped bathroom and a guest toilet complete this floor, providing both comfort and functionality. Outside, a wooden pergola shades the open-air lounge and dining area, surrounded by lush gardens, sunny terraces and a 59.40 m² landscaped pool that visually merges with the sea.

Second floor.

The upper level of 70.19 m² is dedicated to the master bedroom — a private retreat with a walk-in closet, bathroom and a large private terrace with breathtaking views of the Mediterranean Sea.

A second bedroom or office completes this floor, which also provides access to a 25.02 m² solarium, perfect for sunbathing and enjoying the tranquility of the surroundings.

Exterior and location.

Located on a quiet residential street surrounded by modern villas, this property enjoys an exceptional setting just a 3-minute walk from La Fustera beach (150 m), Mandala Beach Bar & Restaurant, and essential amenities such as supermarkets and local services.

Designed with a focus on light, space and a seamless transition between indoor and outdoor living, this villa embodies the modern Mediterranean lifestyle — elegant, relaxed and perfectly in harmony with the impressive panoramic sea views.

For more detailed information on the remaining options and their specifications, you can contact our managers by leaving a request on the website.

Bathrooms 3
Bedrooms 4
Built area 342
Rooms 5
View from the window Street, Panoramic, Sea, Pool
Condition Newly built
Style Classical
Features Basement, Storage room, Dressing room, Laundry, Smart House
Distance to sea 160
Close to Beach, Gym, Sea, Golf course, Restaurant, Spa
Garden Garden
Plot area 800
Parking type Parking
Pools 1
Pool Yes, Private
Security Gated complex
Solarium type Yes
Solarium area 25
Type of terrace Open, Private
Interested in buying property in Spain?Send your request and get our immediate feedback!
By sumbitting this form, you confirm that you agree to our website terms of use, our privacy policy and understand how we store cookies on your device.
Up